Trenitalia
Facebook Twitter Linkedin Youtube Instagram
News ferroviarie









Scarica in PDF

da News ferroviarie del 01 novembre 2022

Carri Sagmms per le DB da Tatravagónka

di Mauro Longarini

POPRAD (Slovacchia) - Tatravagónka a.s. ha sulle spalle oltre cento anni di storia nell'ambito della costruzione e manutenzione di rotabili ferroviari presso le proprie officine di Poprad. Primo fornitore delle ferrovie cecoslovacche ČSD (Československé státní dráhy) e fra i primi costruttori di carrelli per rotabili ferroviari "d'oltre cortina", ha recentemente vinto la commessa per la fornitura di carri pianale serie Sagmms richiesti dalle ferrovie tedesche DB e presentati, tra l'altro, a settembre in occasione di InnoTrans 2022.

1
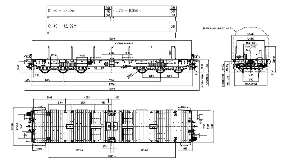
1. Disegno Tatravagónka

Il carro serie Sagmms è dotato di due carrelli da tre assi ciascuno ed è capace di un carico da 101 tonnellate. Atto al trasporto di container standard ISO da 20 o 40 piedi, è in grado inoltre di trasportare prodotti siderurgici lavorati o semilavorati e automezzi anche di tipo militare, quindi particolarmente pesanti. Con una superficie di carico di 46 mq e una lunghezza fuori respingenti di 16.490 mm, il carro presenta un peso assiale di 22,5 tonnellate.
Fra le caratteristiche più singolari di questa serie di carri si registrano la presenza dei cunei di fissaggio di tipo retrattile, uno scomparto ad armadio atto a conservare catene o altri utensili occorrenti, nonché la predisposizione per l'installazione del gancio digitale automatico DAC (vedi News ferroviarie del 21/10/2022).

2
2. Disegno Tatravagónka

Mauro Longarini - 01 novembre 2022

Commenta questa notizia sul forum...

👉 Iscriviti alla newsletter quotidiana gratuita di FERROVIE.IT per ricevere tutte le mattine le ultime notizie.

👉 Unisciti al nostro canale WhatsApp per aggiornamenti in tempo reale.

👉 Condividi: 

Il Treno dei Mercatini di Natale per Trento